Isolation des façades, rénovation partielle et changement du type de production de chaleur d’un chalet en madriers

Au vu des enjeux climatiques en cours et à venir et du fait que ce chalet va être occupé plus fréquemment, les nouveaux propriétaires souhaitent adapter ce bâtiment, construit en 1971, aux standards énergétiques actuels.

Les façades sont isolées par l’extérieur et la production de chaleur au mazout remplacée par une pompe à chaleur air-eau extérieure.

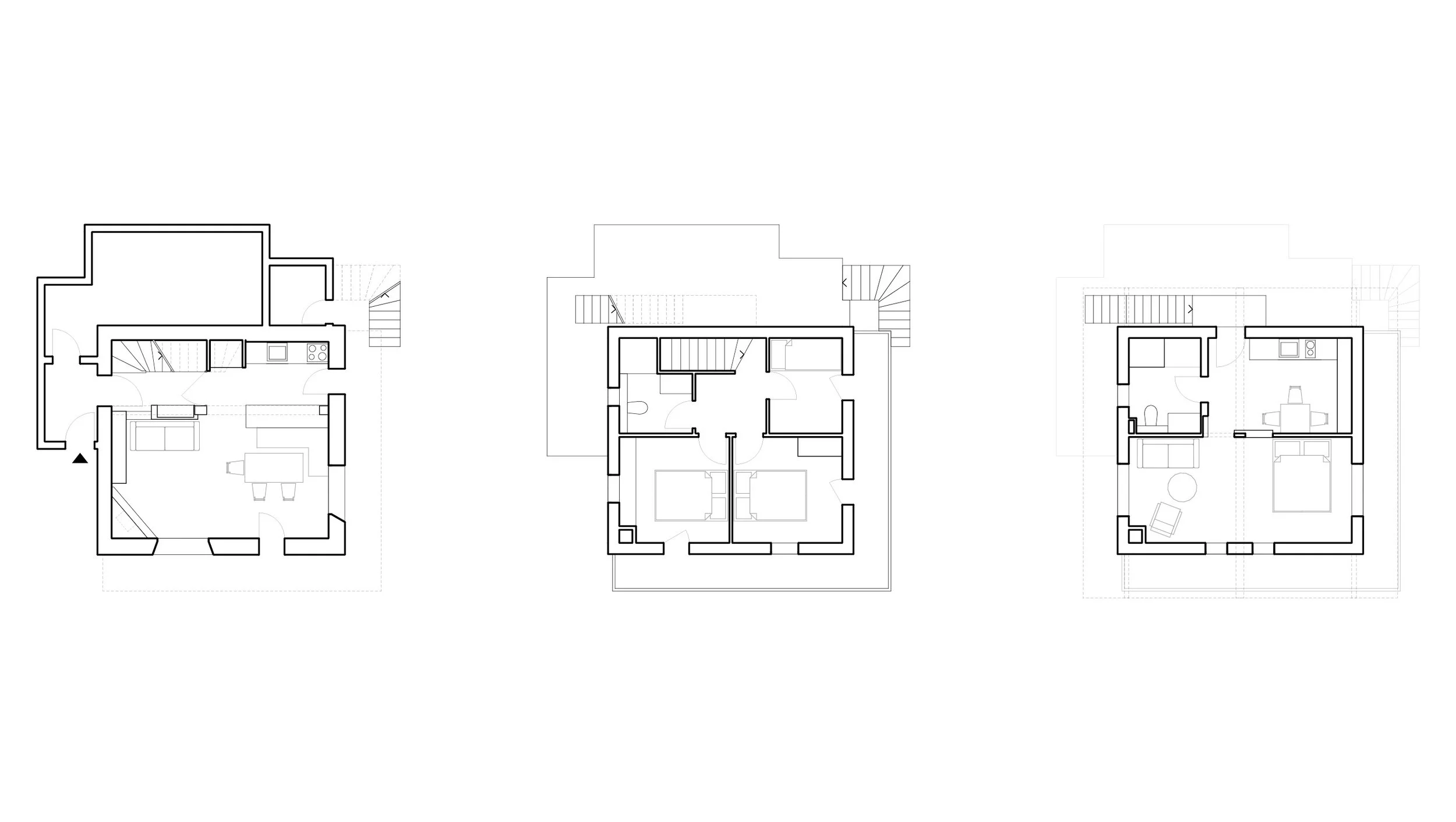
Profitant de ces travaux et de la disponibilité de nouveaux espaces de rangement suite à la suppression de l’installation de chauffage intérieure, il a été préconisé de restructurer légèrement le rez-de-chaussée pour améliorer la spatialité d’un séjour exigu.

Projet : Isolation des façades et changement de production de chaleur d’un chalet en madriers
Programme : Amélioration de l’efficience énergétique et requalifications spatiales intérieures
Localisation : Route de Bréona 75, 1985 La Forclaz (VS)
Année : 2023 – 2025
Maître de l’ouvrage : privé
Mandat : Prestations SIA complètes
Collaboratrice : Laurence Trombert
Partenaire : bureau Tecsa, ingénieurs CVS

Contexte

Le chalet faisant l’objet de cette transformation pour des travaux d’amélioration de l’efficience énergétique a été construit en 1971.

Aujourd’hui situé en zone agricole, il a donc été nécessaire de passer par une procédure cantonale de demande de renseignement et de demande d’autorisation de construire avant de pouvoir engager cette rénovation.

Au vu de la petite taille du chalet et de l’exiguïté des pièces, il est préconisé d’isoler les façades par l’extérieur, en respectant l’expression d’un rez-de-chaussée maçonné et d’étages en matérialité bois. Cette rénovation permet par ailleurs de parer à la problématique de joints entre madrier laissent passer de l’eau lors des grosses tempêtes de foehn, le tassement du chalet ne s’étant jamais complètement fait comme imaginé.

L’installation de chauffage au mazout, vieille de près de 30 ans et comportant des bacs de rétention plus conformes à l’avenir, est remplacée par une pompe à chaleur air-eau extérieure de dernière génération.

Projet

L’intervention préconisée (isolation extérieure en crépis sur isolation et façade ventilée en faux madrier), « banale » au premier abord, trouve sa spécificité dans une série de petits détails visant à mettre en évidence la temporalité de l’intervention. Il s’agit ici de trouver une réinterprétation de certaines caractéristiques architecturales des chalets en madriers de la région en lien avec les techniques d’isolation utilisées.

Il en est ainsi pour les angles et les encadrements de baies du chalet pour la partie bois.

Quant au socle maçonné du rez-de-chaussée, le travail s’est concentré sur la géométrie et la matérialité des embrasures, pour minimiser les interventions sur la structure porteuse et optimiser l’ouverture visuelle. Ainsi, les biais, propres à chaque baie, permettent d’offrir le même dégagement visuel qu’à l’origine, malgré presque 20cm d’épaisseur de mur supplémentaire. Les nouvelles menuiseries extérieures en mélèze, sans petits bois ni allège réhaussée, permettent d’optimiser les surfaces de jour alors que les épaisses tablettes en mélèze apportent un rappel du matériau bois au rez-de-chaussée tout en isolant la tranche supérieure du mur maçonné.

Le sol du rez-de-chaussée en carrelage (présence d’amiante) sur dallage, véritable source d’inconfort, reçoit une couche fine d’un isolant hyper performant recouvert d’un plancher en mélèze raboté.

Enfin et en lien avec ces interventions sur l’enveloppe, une modification de cloison entre le séjour et le hall d’entrée permet de redimensionner plus généreusement une partie de séjour très étriquée alors que deux nouvelles fenêtres sont créées dans les combles, offrant de nouvelles vues et de la lumière dans cette partie sombre du chalet.

Suivant
Suivant

Grenand